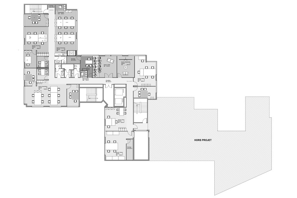
Ifop

Projet réalisé chez l’agence High-Graph Architecture.

Réhabilitation de trois niveaux d’un bâtiment de bureau à Paris.